Commercial Sewage News
January 18, 2021
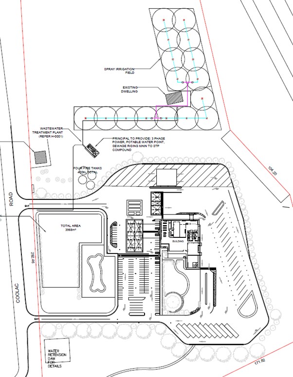
Wastewater Treatment for Service Station on the Hume Highway
True Water recently installed a wastewater treatment system for a major service station on the Hume Highway at Coolac. With the service station now open for business, we are happy to report the system is performing perfectly.

Coolac Service Station is located on the Hume Highway on the busy route between Melbourne and Sydney. Set just off the highway, it is only 10kms from the famous Dog on the Tucker Box. The state-of-the-art centre caters for locals, tourists, and the many truck drivers who ply this route. The service station is already doing a brisk trade. For this project, the little details in the design and function of the project make all the difference. The clients’ attention to detail went as far as making the dog park in the shape of a bone.
For more information about the wastewater treatment solution designed, manufactured, installed and commissioned by True Water, check out our Project Brief.
Delivering a Wastewater Treatment Solution During COVID19
An added challenge facing all companies at the moment is navigating Covid19 restrictions and requirements. With careful planning and cooperation, we installed the system without impacting any other trades working on the busy site. By making small changes to our standard installation schedule and maintaining great communication, the system was delivered with ease. A recent upgrade of our whole project management software is a key factor. This allowed for better remote communication and direction for the entire project.
True Water are installing more systems for service stations than ever. Our compact, modular, state of the art systems combine simple process with high quality treatment. Importantly, this provides the perfect treatment solution for the unique requirements of a roadside petrol station.
Drop into the Coolac Service Station if you are travelling the Hume Highway and see if you can spot the Kubota wastewater treatment system tucked away beneath the ground. The large, modern centre offers some great facilities and is an asset to the Coolac community.
Contact True Water for all of your design & consultancy and supply & installation needs.
Manufacture and Installation Images
- Kubota STP modules being moved into position at the Coolac Service Centre.
- The Wastewater Treatment Plant at Coolac on the Hume Highway is installed close to the main service area and needed to be compact, discreet and odour free.
- The tanks and STP modules are carefully installed below ground.
- The installation is backfilled and compacted before finishing.
- The STP compound is finished with edging and gravel to ensure a neat finish and the maintenance of easy access for servicing.
- The Kubota STP modules, holding tanks, land application area and pump station are all connected to the central CONNECTmi Controller system.
- At the Coolac Service Station, a combination of subsurface drip irrigation and surface spray irrigation is the chosen method for dispersal of the treated water.
- The subsurface drip irrigation is installed at a specific depth below the ground and in regular lines to ensure even and effective dispersal of the treated effluent.
- The land application areas are located to the north and west of the service station infrastructure.
- The pumps and blowers are pre installed in the powder coated aluminum Control Cabinet to reduce the installation timeline and ensure quality control of the manufacturing.
- Premanufacturing occurs at the True Water workshop where a stringent RMQD process ensures quality and consistency.
- The True Water CONNECTmi Controller manages the processes on site and the TELEmi monitoring provides real time remote monitoring of the functions.















